【続報】2017年10月9日 街づくり支援企画 第一弾 物件先行紹介
|
マンション外観。1Fは協愛病院(内科,小児科,皮膚科,アレルギー科)です。
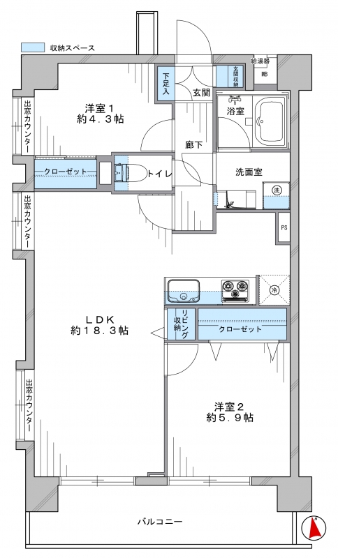
間取り図。広々約18.3帖のLDKです。
お部屋からの眺望。南向きバルコニーの正面には目の前をさえぎるものがなく、開放感を味わえます!
|
いよいよ『街づくり第一弾イベント in 大田区・品川区』が今週末[10月9日(祝)]に迫りました! そこで今回は、当日ご案内予定の物件からひとつ先行してご紹介しようと思います。
☆《蒲田》眺望抜群リノベーションマンション
【クレッセント蒲田Ⅱ】
☆専有面積:60.76㎡ ☆バルコニー:9.24㎡ ・最上階 & 南西角部屋 ・新規リノベーションマンション 明日もまたお知らせする予定です。ぜひご期待ください。 大田区・品川区でご興味のある物件がお有りのかた、ぜひリクエストください。戸建て・マンションとも当日ご案内可能です! |
|---|























